Groepsverblijf met groot speelveld en overdekte speelruimte (Huiscode: 2225)

Deze groepsaccommodatie ligt in het buitengebied van Brabant, op enkele kilometers van Eindhoven en is geschikt voor maar liefst 72 personen! Het vakantieadres beschikt over een grote centrale ruimte en een énorm speelveld waarop je in alle privacy een leuke buitenactiviteit kunt organiseren. Met name scholen, sportverenigingen, maar ook grote families vermaken zich hier uitstekend!
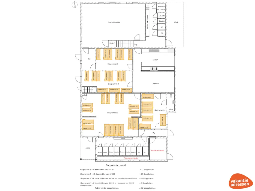
De grote recreatieruimte beslaat ruim 80 m2. In deze ruimte organiseer je met gemak een leuke activiteit, zoals een quiz of een bonte avond. Er staan grote eettafels waaraan het gezelschap gezamenlijk kan dineren. De aanwezige keuken voorziet in alle benodigdheden om voor een grote groep te koken: een oven, vriezer, grote koelkasten en een 8-pits horecafornuis.
Op de eerste verdieping is een tweede recreatieruimte aanwezig met een tafeltennistafel, tafelvoetbalspel, airhockeytafel en andere gezelschapsspellen.
De accommodatie beschikt over 4 slaapruimtes, waarvan er 3 voorzien zijn van stapelbedden. De 4e slaapruimte beschikt over 2 stapelbedden, 4 boxspringbedden en een eigen sanitairruimte. Een aangename slaapplek voor de eventuele begeleiding. In 2021 is de gehele accommodatie gerenoveerd én is er een nieuwe sanitairruimte bij gekomen. In één van de sanitaire ruimtes bevindt zich een aangepaste douche en toilet. Linnengoed en kussens dienen zelf meegenomen te worden!
Gezien de buitenruimte om de accommodatie is het verlaten van het terrein eigenlijk onnodig. Je hebt alles tot je beschikking om een leuke invulling te creëren, waarbij een 6-kamp of een sportieve dag zeker tot de mogelijkheden behoren. Het terrein is afgeschermd met bomen en struiken, dus je hebt alle privacy. Er staan grote picknickbanken om bijvoorbeeld gezellig te barbecueën!
Bijzonderheden:
Dit vakantieadres is zowel voor kleine als grotere groepen geschikt en staat daarom twee keer op ons platform. Het betreft hetzelfde vakantieadres met dezelfde foto's & prijzen en wordt dus ook altijd aan één groep tegelijk verhuurd.
Beneden
Slaapruimte 1: 2x stapelbed (90x210) + 4x 1-persoons boxspringbed (90x210) + douche, toilet en wastafel
Slaapruimte 2: 9x stapelbed (80x200) + 7x stapelbed (90x210)
Slaapruimte 3: 7x stapelbed (80x200) + 3x stapelbed (80x200)
Slaapruimte 4: 6x stapelbed (80x200)
Sanitaire ruimte 1: 3x douche, 3x toilet, 1x urinoir en grote wastafel
Sanitaire ruimte 2: 7x douche, 2x toilet, en grote wastafel
Boven
Toilet
Was allemaal goed!
Een zeer goede accommodatie voor een verblijf met een grote groep. De boerderij is ruim, schoon en voorzien van alle gemakken. De eigenaren communiceren helder en direct en komen niet met te veel onnodige verhalen. De accommodatie ligt wat verder van de grote steden af, maar dit zorgt ook voor een stukje rust rondom de slaapplaats.
We hebben met onze muzikale vriendengroep een heerlijk weekendje in het herfstzonnetje gehad! Dit is echt een perfecte locatie voor grote groepen en we werden heel hartelijk ontvangen door verhuurders. Dankjulliewel! Het enige minpuntje was iets waar de locatie zelf helemaal niks aan kan doen en dat is het feit dat het dichtstbijzijnde busstation een half uur lopen is. Prima op te lossen met wat lieve ophaalchauffeurs, maar wel fijn om van tevoren te weten.
Een fijn huis, veel mogelijkheden voor alle weersomstandigheden
Met onze VMBO school een enorm goede week gehad. Prettig, keurig netjes verblijf met hele betrokken medewerkers. Wij komen dus graag weer terug volgend jaar.
Doelgroepen
- Dit vakantieadres is geschikt voor :
- Familie
- School / Jeugdkamp
- Sportvereniging
- Voetbalteam
- Vriendengroep boven de 30 jaar
- Dit vakantieadres wordt niet verhuurd aan:
- Studenten
- Feestgroep
- Jongeren onder de 25 jaar
- Vriendengroep onder de 30 jaar
Algemeen
- WiFi
- 11 Douches
- 7 Toiletten
- 10 Wastafels
Faciliteiten
- Woonkamer
- Keuken
- 8 Aantal gaspitten / kookplaten
- Koelkast
- Diepvries
- Magnetron
- Oven
- Vaatwasmachine
- Koffiezetapparaat (filter)
- Wasmachine
- Centrale verwarming
- Laadpaal voor elektrische auto's
- Accommodatie + locatie geschikt als trouwlocatie
- Projectiescherm met beamer
Indoor recreatievoorzieningen
- Overdekte speelruimte
- Tafelvoetbal
- Tafeltennistafel (binnen)
Outdoor recreatievoorzieningen
- Tuin
- Tuinmeubelen
- Speelveldje
- Voetbalveld
- Volleybalveld
- Tafeltennistafel (buiten)
- Speeltoestellen
- Kinderen kunnen binnen een omheining spelen
- Kampvuurplaats
- Zandbak
- Overdekt terras
- Vuurkorf
Extra faciliteiten
- Opladen elektrische fietsen
Mindervaliden
- Accommodatie is gelijkvloers
- Aangepast toilet
- Aangepaste douche
- Brede deuren
Ligging van de locatie
- Accommodatie wordt uitsluitend door u gehuurd
- Meerdere accommodaties op het terrein
- Landelijk gelegen
- Bosrijke omgeving
- Buiten het centrum
- Nabij een natuurgebied
- Minder dan 15 km van een grote stad gelegen
Energielabel
- Energielabel: B
Natuur
Op 200 meter lopen ligt een bos waarin niet alleen gewandeld kan worden, maar kinderen ook hun creativiteit kwijt kunnen in het bouwen van hutten. Echte natuurgebieden in de omgeving zijn onder andere het Groot Malpieven, Plateaux Hageven en de Brabantse Kempen. Heidevlakten, zandduinen en uitgestrekte bossen kenmerken de diverse gebieden, die zich lenen voor mooie wandelingen en fietstochten.
Aan de andere zijde van de accommodatie ligt wandelgebied Het Schut, dat je vanuit de accommodatie gemakkelijk te voet kunt bereiken. De landelijke ligging maakt dat ook de fietsen mee kunnen, want de locatie kan prima als startpunt van een mooie fietstocht door het Brabantse landschap fungeren.
Activiteiten
Hoewel de ruimte om de accommodatie zich leent voor een leuke groepsactiviteit zijn er ook in de omgeving voldoende activiteiten te organiseren. Ten noorden van de locatie ligt Centerparcs de Kempervennen. Hier zijn een waterskicentrum, een groot subtropisch zwembad en verschillende indoor-activiteiten te vinden, die ook door gasten van buiten het park geboekt mogen worden. In de omgeving zijn tevens een Snow Center, een klimbos en een vestiging van Monkeytown (Valkenswaard) te vinden. Jong en oud kan zich in de regio uitstekend vermaken.
Steden en dorpen
Op korte afstand liggen Valkenswaard, Eindhoven en Weert. Alle voorzieningen zijn bij de hand. Supermarkten, bakkers, maar ook parken en winkelcentra. Het vakantieadres is centraal gelegen aan een vertakking van de N69. Goed bereikbaar en in de buurt van diverse uitvalswegen.

Rianne

Mathilde

Jisk
-
Selecteer de door jou gewenste aankomst & vertrekdata in de kalender, voer het aantal personen in en je ziet direct de totaalprijs én de omgerekende prijs per persoon.
-
Bij de meeste vakantieadressen is het mogelijk om een optie te plaatsen.
- Een optie plaats je wanneer je bijna zeker weet dat je gaat boeken, maar nog even met de rest van de groep wilt overleggen. Het vakantieadres wordt dan tijdelijk voor jou geblokkeerd.
- Om ervoor te zorgen dat er niet teveel vakantieadressen tijdelijk worden geblokkeerd, kun je maximaal 3 opties tegelijk hebben lopen.
- Wil je een kijkafspraak inplannen? Plaats dan eerst een optie op de voorkeursperiode.
- Een optie is kosteloos & vrijblijvend, en veelal 3 tot 5 dagen mogelijk. Binnen deze termijn laat je de verhuurder weten of je de optie wenst om te zetten in een boeking.
- Opties zijn pas definitief nadat deze door de verhuurder zijn bevestigd.
-
Ja, dat kan in de meeste gevallen. Je dient eerst een optie te plaatsen op de periode die je eventueel wilt boeken. Bij de opmerkingen geef je aan dat je een kijkafspraak wilt inplannen. De verhuurder neemt vervolgens contact met je op om een kijkafspraak in te plannen. Heb je nog geen definitieve datum? Ook dan is het nodig om een optie te plaatsen, waarbij je bij de opmerkingen vermeldt dat je nog geen definitieve datum hebt. Let op: het inplannen van een kijkafspraak vraagt om afstemming met de verhuurder en is daarom niet op de dag zelf (vandaag) mogelijk.360° tour
-
Kies een aankomst & vertrek en vul het boekingsformulier in. De verhuurder zal vervolgens contact met je opnemen om de boeking verder af te handelen. Wanneer de verhuurder de boeking heeft goedgekeurd, ontvang je automatisch een e-mail.
-
Ja, het stellen van een vraag kan eenvoudig door het invullen van het optieformulier. De vraag plaats je vervolgens bij 'Uw gegevens' > 'Persoonlijk bericht voor de verhuurder'. De verhuurder zal de vraag zo spoedig mogelijk beantwoorden.
-
Ja, dat is mogelijk. Vul hiervoor het optieformulier in en stel je vragen alvast in het 'opmerkingen' veld. Dit kun je eenvoudig ingeven bij 'Uw gegevens' > 'Persoonlijk bericht voor de verhuurder'. De verhuurder kan aan de hand daarvan direct telefonisch contact met je opnemen!
-
Op onze websites worden vanuit privacy overwegingen geen adresgegevens van vakantieadressen getoond. Op de kaart bij 'Locatie vakantieadres & overzicht Groepsactiviteiten' vind je een nauwkeurige weergave van de locatie van het vakantieadres. Na je boeking ontvang je de adresgegevens van de verhuurder.
-
Nadat de verhuurder je boeking heeft goedgekeurd, ontvang je van de verhuurder een boekingsbevestiging inclusief betalingstermijnen. Je betaalt dus rechtstreeks aan de verhuurder. De verhuurder is vrij om zijn eigen betalingstermijnen te hanteren. Veelvoorkomend is een aanbetaling van ca. 50% binnen 2 weken na boeken en de resterende 50% uiterlijk 6 weken voor aankomst.
-
Nee, het is niet mogelijk om kosteloos te annuleren. Met het plaatsen van een boeking ontstaat er een betaalverplichting wanneer je boeking door de verhuurder is geaccepteerd. Iedere verhuurder is vrij om zijn eigen annuleringsbeleid te bepalen. De verhuurder zal je hiervan op de hoogte stellen bij het versturen van de boekingsbevestiging. Veelvoorkomend in onze sector zijn de volgende annuleringstermijnen en bijbehorende percentages.
- Bij een annulering meer dan 12 maanden voor aankomst, 10% van het totaalbedrag.
- Bij een annulering binnen 6 tot 12 maanden voor aankomst, 30% van het totaalbedrag.
- Bij een annulering binnen 4 tot 6 maanden voor aankomst, 70% van het totaalbedrag.
- Bij een annulering binnen 2 tot 4 maanden voor aankomst, 80% van het totaalbedrag.
- Bij een annulering binnen 2 maanden voor aankomst, 95% van het totaalbedrag.
- Bij een annulering op of na de dag van aankomst, 100% van het totaalbedrag.
Desgewenst kun je ervoor kiezen om een (groeps)annuleringsverzekering af te sluiten. Voer eerst de gewenste datum én het aantal personen in. Vervolgens wordt in het optie- of boekingsformulier de premie(kosten) getoond, waarna je de groepsannuleringsverzekering desgewenst kunt toevoegen.
-
Ja, het is mogelijk om via Vakantieadressen.nl een groepsannuleringsverzekering bij te boeken. Voer eerst de gewenste datum én het aantal personen in. Vervolgens wordt in het optie- of boekingsformulier de premie(kosten) getoond, waarna je de groepsannuleringsverzekering desgewenst kunt toevoegen.
Belangrijk: een eigen (doorlopende) annuleringsverzekering dekt doorgaans alleen de annuleringskosten voor de personen die vermeld staan op de polis, en dus niet de hele groep. Daarom raden wij een groepsannuleringsverzekering aan. Alle personen die meegaan, vallen dan onder de dekking.
-
Bekijk hier alle veelgestelde vragen