Luxe groepshuis met overdekt terras en buiten haard (Huiscode: 135)

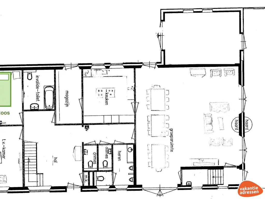
Deze luxe groepsaccommodatie in Noord-Limburg is geschikt voor groepen tot 20 personen en voorzien van 8 slaapkamers en 8 badkamers. Het vakantieadres heeft een groot overdekt terras met open haard en een enorme tuin met veel speelruimte. De accommodatie is op de begane grond ingericht voor mindervaliden en is voorzien van een aangepaste douche, toilet, wastafel en bad.
De vakantieboerderij met een authentieke uitstraling heeft een grote gezamenlijke ruimte met een eetgedeelte en een gezellige zithoek rondom de open haard. Er is een aparte TV-kamer met comfortabele banken, Wii spelcomputer en boekenkast met boeken en spellen. De professionele keuken is uitgerust met een vaatwasser, kookeiland met 7 pits gasfornuis, 2 ovens, koelkast met diepvries en een aparte koffiehoek met grote koffiezetter en broodrooster. In een extra ruimte staat een grote koelkast, wasmachine, wasdroger, strijkplank, strijkijzer en een magnetron.
In de slaapkamer op de begane grond staan twee 1-persoons boxsprings die elektrisch verstelbaar zijn aan hoofd- en voetgedeelte. De badkamer is speciaal ingericht voor mindervaliden met aangepast toilet, wastafel, inloopdouche en bad. Op de verdieping bevinden zich de andere 7 slaapkamer (alle bedden zijn 90x210). Alle kamers hebben een eigen badkamer met inloopdouche, toilet en wastafel. Elke kamer heeft een thema en aanvullend een bureau, stoel, televisie en ruimte om kleding op te bergen.
In de riante tuin kunnen de kinderen zich naar hartenlust uitleven, je vindt er een trampoline, schommel, zandbak en speelveld met goals. Er is een groot overdekt terras met open haard (er is voldoende gratis open haardhout aanwezig) en op aanvraag is er een gasbarbecue beschikbaar. In de tuin staat een afsluitbare fietsenstalling met voldoende stroompunten om fietsen op te laden.
Er zijn 2 kinderstoelen aanwezig. Op aanvraag kunnen ook 2 kinderbedjes, een kinderbox en 1 opklapbed geplaatst worden. Het verzorgen van catering of ontbijt behoort tot de mogelijkheden. Ook een beamer met projectiescherm is op aanvraag beschikbaar.
Bijzonderheden:
Dit vakantieadres is zowel voor kleine als grotere groepen geschikt en staat daarom twee keer op ons platform. Het betreft hetzelfde vakantieadres met dezelfde foto's & prijzen en wordt dus ook altijd aan één groep tegelijk verhuurd.
Beneden:
Slaapkamer 1: 2x 1-persoons boxspring
Mindervaliden badkamer met douche + bad + toilet + wastafel
3x los toilet + wastafel
Boven:
Slaapkamer 2: 2x 1-persoonsboxspring + douche + toilet + wastafel
Slaapkamer 3: 2x 1-persoonsboxspring + douche + toilet + wastafel
Slaapkamer 4: 2x 1-persoonsboxspring + douche + toilet + wastafel
Slaapkamer 5: 3x 1-persoonsboxspring + douche + toilet + wastafel
Slaapkamer 6: 3x 1-persoonsboxspring + douche + toilet + wastafel
Slaapkamer 7: 3x 1-persoonsboxspring + douche + toilet + wastafel
Slaapkamer 8: 3x 1-persoonsboxspring + douche + toilet + wastafel
Wij hebben hier met 8 stellen een fantastisch verblijf gehad. Erg complete en professionele keuken ook. Wij gaan hier zeker terug komen, hebben al een optie zelfs.
We werden zeer vriendelijk ontvangen, met een vlaai voor bij de koffie! Een prachtig verblijf met ruime slaapkamers, een gezellige grote woonkamer en een overdekt terras!
Wat een super geweldige accommodatie. De ontvangst en gastvrijheid waren fantastisch. Echt aandacht voor alles wat je nodig hebt. En alle tips van de gastvrouw waren zeer welkom.
Wat een fantastische groepsaccomodatie! We zaten hier met 6 stellen incl. Kinderen. Allereerst; het huis is heel compleet en van alle gemakken voorzien. Verder is de woning bijzonder schoon. Wij hebben een top verblijf gehad!
Hallo, Wij hebben een geweldig weekend gehad in jullie verblijf. Het was echt helemaal af, alles was er, Het was echt helemaal top Grt Wilma
Doelgroepen
- Dit vakantieadres is geschikt voor :
- Studenten
- Familie
- Jongeren onder de 25 jaar
- Sportvereniging
- Vriendengroep onder de 30 jaar
- Vriendengroep boven de 30 jaar
- Dit vakantieadres wordt niet verhuurd aan:
- Feestgroep
- School / Jeugdkamp
- Voetbalteam
Algemeen
- WiFi
- 8 Douches
- 1 (Lig)baden
- 10 Toiletten
- 10 Wastafels
- 2 Kinderbedjes
- 2 Kinderstoelen
- 1 Kinderboxen
- Traphekjes
Faciliteiten
- Woonkamer
- Televisie
- Openhaard of houtkachel
- Keuken
- 7 Aantal gaspitten / kookplaten
- Koelkast
- Diepvries
- Magnetron
- Oven
- Vaatwasmachine
- Koffiezetapparaat (filter)
- Koffiezetapparaat (cups)
- Wasmachine
- Droger
- Dekbedden
- Kussens
- Alle slaapkamers zijn voorzien van eigen douche, toilet en wastafel
- Centrale verwarming
- Vloerverwarming
- Laadpaal voor elektrische auto's
- Accommodatie + locatie geschikt als trouwlocatie
- Barbecue
Indoor recreatievoorzieningen
- Sjoelbak
Outdoor recreatievoorzieningen
- Tuin
- Tuinmeubelen
- Speelveldje
- Voetbalveld
- Tafeltennistafel (buiten)
- Trampoline
- Speeltoestellen
- Kinderen kunnen binnen een omheining spelen
- Zandbak
- Overdekt terras
- Buitenkachel
Extra faciliteiten
- Berging voor bijvoorbeeld fietsen
- Opladen elektrische fietsen
Mindervaliden
- Accommodatie is gelijkvloers
- Aangepast toilet
- Aangepaste douche
- Drempelloos
- Brede deuren
Ligging van de locatie
- Accommodatie wordt uitsluitend door u gehuurd
- Landelijk gelegen
- Bosrijke omgeving
- Buiten het centrum
- Nabij een natuurgebied
Energielabel
- Energielabel: A
Natuur
De accommodatie ligt midden op het Limburgse platteland met verschillende natuurgebieden op korte afstand. De Boshuizerbergen liggen om de hoek, een bosrijk natuurgebied met diverse wandelroutes. Aan de andere zijde van de Maas, op 10 minuten rijden, ligt Nationaal park de Maasduinen. Hier vind je heidevelden, zandduinen, een speelbos en het Reindersmeer, een grote natuurplas. Na een wandeling kun je voor een kop koffie terecht in het aanwezige bezoekerscentrum. Een geweldige plek om van de natuur te genieten.
Activiteiten
In de nabije omgeving zijn diverse dagattracties en activiteiten te vinden. Zooparc Overloon ligt op korte afstand en ook Nederlands grootste oorlogsmuseum ligt binnen handbereik. Daarnaast zit je dicht bij de Duitse grens en behoort een bezoek aan belevingspark Irrland tot de mogelijkheden. Ook de kasteeltuinen van Arcen zijn op korte afstand gelegen en een bezoek waard voor iedere tuin en groenliefhebber.
Steden en dorpen
Op korte afstand liggen Venlo, Venray en Horst (vlak naast Toverland). Alle voorzieningen zijn bij de hand. Supermarkten, bakkers, maar ook parken en winkelcentra. Het vakantieadres is centraal gelegen aan een vertakking van de A73. Goed bereikbaar en in de buurt van diverse uitvalswegen.

Rianne

Mathilde

Jisk
-
Selecteer de door jou gewenste aankomst & vertrekdata in de kalender, voer het aantal personen in en je ziet direct de totaalprijs én de omgerekende prijs per persoon.
-
Bij de meeste vakantieadressen is het mogelijk om een optie te plaatsen.
- Een optie plaats je wanneer je bijna zeker weet dat je gaat boeken, maar nog even met de rest van de groep wilt overleggen. Het vakantieadres wordt dan tijdelijk voor jou geblokkeerd.
- Om ervoor te zorgen dat er niet teveel vakantieadressen tijdelijk worden geblokkeerd, kun je maximaal 3 opties tegelijk hebben lopen.
- Wil je een kijkafspraak inplannen? Plaats dan eerst een optie op de voorkeursperiode.
- Een optie is kosteloos & vrijblijvend, en veelal 3 tot 5 dagen mogelijk. Binnen deze termijn laat je de verhuurder weten of je de optie wenst om te zetten in een boeking.
- Opties zijn pas definitief nadat deze door de verhuurder zijn bevestigd.
-
Ja, dat kan in de meeste gevallen. Je dient eerst een optie te plaatsen op de periode die je eventueel wilt boeken. Bij de opmerkingen geef je aan dat je een kijkafspraak wilt inplannen. De verhuurder neemt vervolgens contact met je op om een kijkafspraak in te plannen. Heb je nog geen definitieve datum? Ook dan is het nodig om een optie te plaatsen, waarbij je bij de opmerkingen vermeldt dat je nog geen definitieve datum hebt. Let op: het inplannen van een kijkafspraak vraagt om afstemming met de verhuurder en is daarom niet op de dag zelf (vandaag) mogelijk.360° tour
-
Kies een aankomst & vertrek en vul het boekingsformulier in. De verhuurder zal vervolgens contact met je opnemen om de boeking verder af te handelen. Wanneer de verhuurder de boeking heeft goedgekeurd, ontvang je automatisch een e-mail.
-
Ja, het stellen van een vraag kan eenvoudig door het invullen van het optieformulier. De vraag plaats je vervolgens bij 'Uw gegevens' > 'Persoonlijk bericht voor de verhuurder'. De verhuurder zal de vraag zo spoedig mogelijk beantwoorden.
-
Ja, dat is mogelijk. Vul hiervoor het optieformulier in en stel je vragen alvast in het 'opmerkingen' veld. Dit kun je eenvoudig ingeven bij 'Uw gegevens' > 'Persoonlijk bericht voor de verhuurder'. De verhuurder kan aan de hand daarvan direct telefonisch contact met je opnemen!
-
Op onze websites worden vanuit privacy overwegingen geen adresgegevens van vakantieadressen getoond. Op de kaart bij 'Locatie vakantieadres & overzicht Groepsactiviteiten' vind je een nauwkeurige weergave van de locatie van het vakantieadres. Na je boeking ontvang je de adresgegevens van de verhuurder.
-
Nadat de verhuurder je boeking heeft goedgekeurd, ontvang je van de verhuurder een boekingsbevestiging inclusief betalingstermijnen. Je betaalt dus rechtstreeks aan de verhuurder. De verhuurder is vrij om zijn eigen betalingstermijnen te hanteren. Veelvoorkomend is een aanbetaling van ca. 50% binnen 2 weken na boeken en de resterende 50% uiterlijk 6 weken voor aankomst.
-
Nee, het is niet mogelijk om kosteloos te annuleren. Met het plaatsen van een boeking ontstaat er een betaalverplichting wanneer je boeking door de verhuurder is geaccepteerd. Iedere verhuurder is vrij om zijn eigen annuleringsbeleid te bepalen. De verhuurder zal je hiervan op de hoogte stellen bij het versturen van de boekingsbevestiging. Veelvoorkomend in onze sector zijn de volgende annuleringstermijnen en bijbehorende percentages.
- Bij een annulering meer dan 12 maanden voor aankomst, 10% van het totaalbedrag.
- Bij een annulering binnen 6 tot 12 maanden voor aankomst, 30% van het totaalbedrag.
- Bij een annulering binnen 4 tot 6 maanden voor aankomst, 70% van het totaalbedrag.
- Bij een annulering binnen 2 tot 4 maanden voor aankomst, 80% van het totaalbedrag.
- Bij een annulering binnen 2 maanden voor aankomst, 95% van het totaalbedrag.
- Bij een annulering op of na de dag van aankomst, 100% van het totaalbedrag.
Desgewenst kun je ervoor kiezen om een (groeps)annuleringsverzekering af te sluiten. Voer eerst de gewenste datum én het aantal personen in. Vervolgens wordt in het optie- of boekingsformulier de premie(kosten) getoond, waarna je de groepsannuleringsverzekering desgewenst kunt toevoegen.
-
Ja, het is mogelijk om via Vakantieadressen.nl een groepsannuleringsverzekering bij te boeken. Voer eerst de gewenste datum én het aantal personen in. Vervolgens wordt in het optie- of boekingsformulier de premie(kosten) getoond, waarna je de groepsannuleringsverzekering desgewenst kunt toevoegen.
Belangrijk: een eigen (doorlopende) annuleringsverzekering dekt doorgaans alleen de annuleringskosten voor de personen die vermeld staan op de polis, en dus niet de hele groep. Daarom raden wij een groepsannuleringsverzekering aan. Alle personen die meegaan, vallen dan onder de dekking.
-
Bekijk hier alle veelgestelde vragen