Groepsverblijf gelegen direct aan het water met eigen strand (Huiscode: 2146)
 
                    Gelegen in het prachtige Nationaal Park Lauwersmeer vind je dit bijzondere vakantieadres voor groepen tot 16 personen. Verleg je grenzen en geniet van de prachtige natuur! Zeil, vaar en zwem je moe in het naastgelegen water met eigen strand. 
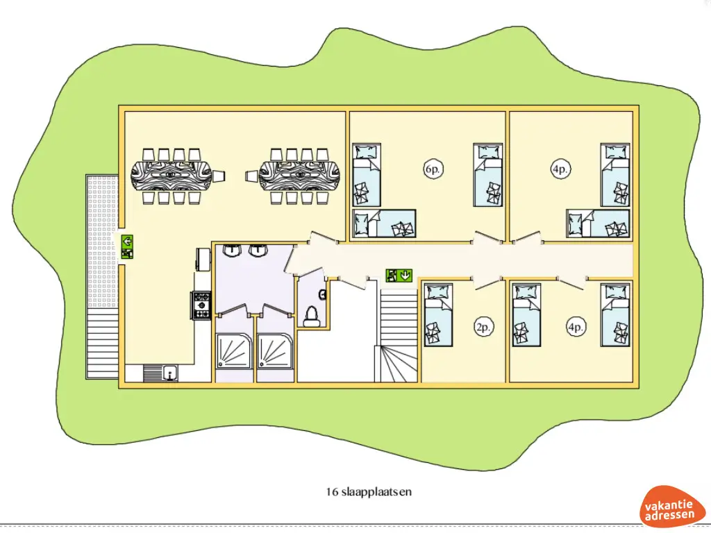
De vakantiewoning beschikt op de begane grond over een leefruimte met tafel, verschillende zithoekjes, douches en toilet. De keuken, eettafel, twee douches, een toilet en vier slaapkamers bevinden zich op de verdieping. Kussens en dekbedden zijn standaard aanwezig, beddengoed kun je bijboeken of zelf meenemen. De keuken is voorzien van een 5-pits gasfornuis, oven en koelkast. Rondom de vakantiewoning is alle ruimte voor het organiseren van activiteiten. Je beschikt over een eigen terras. Op het terrein vind je verder een voetbalveld, trampoline, speeltoestellen en een kampvuurplaats. Je kunt een sauna en een mooie (met natuurwater gevulde) houtgestookte tobbe erbij huren. Vanwege de ligging van het huis is de kwaliteit van het internet beperkt/laag.
De activiteiten die georganiseerd kunnen worden gaan van actief tot minder actief, zodat iedereen een gezellige dag heeft. Stel zelf een buitensportprogramma samen, of maak gebruik van één van de buitensportarrangementen. Zoef over het water van de tokkelbaan, klauter de klimtoren op, slinger een weg door het survivalbos, los raadsels op met behulp van een gps of schiet in de roos met pijl en boog.
Of gaan jullie liever voor een ontspannen High Tea of picknick op een eiland? De diverse activiteiten zijn overigens goed te combineren in een compleet dagprogramma. Sluit de dag af met een gezellige barbecue, pizza bakken in een echte steenoven, luxe buffet of een borrel met snack in het restaurant op het terrein. Daarnaast is er een sauna en een hottub (hier zijn kosten aan verbonden) aanwezig waar je heerlijk kunt relaxen!
Badkamer met douche, toilet en wastafel
Boven:
Slaapkamer 1: 1x stapelbed
Slaapkamer 2: 2x stapelbed
Slaapkamer 3: 2x stapelbed
Slaapkamer 4: 3x stapelbed
Badkamer met 2 douches en 2 wastafels
Losse toilet
Mooie ligging, rust en veel ruimte in en om het verblijf.
WLAN werkte niet, alles vol met vogelpoep enz.
Review vertaald vanuit het Duits Origineel tonenWLAN Klappte nicht, Alles voller Vogelcot etc.
Prachtige plek voor alle generaties. Kindjes kunnen spelen, volwassenen relaxen, fietsen, wandelen. Bedden en kamers goed en aangenaam. Eigen parkeerplek is ook aangenaam.
Mooie plek, goede prijs kwaliteit verhouding.
Zie sterrren
Doelgroepen
- Dit vakantieadres is geschikt voor :
- Familie
- Vriendengroep boven de 30 jaar
- Dit vakantieadres wordt niet verhuurd aan:
- Studenten
- Feestgroep
- Jongeren onder de 25 jaar
- School / Jeugdkamp
- Sportvereniging
- Voetbalteam
- Vriendengroep onder de 30 jaar
Algemeen
- Huisdieren toegestaan
- 2 huisdieren zijn toegestaan
- WiFi
- 3 Douches
- 2 Toiletten
- 3 Wastafels
- 1 Kinderstoelen
Faciliteiten
- Woonkamer
- Televisie
- Keuken
- 5 Aantal gaspitten / kookplaten
- Koelkast
- Diepvries
- Oven
- Koffiezetapparaat (filter)
- Dekbedden
- Kussens
- Centrale verwarming
- Barbecue
Outdoor recreatievoorzieningen
- Tuin
- Tuinmeubelen
- Speelveldje
- Voetbalveld
- Trampoline
- Speeltoestellen
- Kampvuurplaats
- Overdekt terras
Extra faciliteiten
- Sauna
- Hottub
Mindervaliden
- Hoog-laag bed
Ligging van de locatie
- Accommodatie wordt uitsluitend door u gehuurd
- Meerdere accommodaties op het terrein
- Landelijk gelegen
- Bosrijke omgeving
- Buiten het centrum
- Nabij de zee
- Nabij een natuurgebied
- Langs een rivier / meer
Natuur
De groepsaccommodatie ligt aan de rand van het Nationaal Park Lauwersmeer, in een weids landschap met zuivere zeelucht, fraaie flora en fauna, prachtige wolkenpartijen en schitterende vergezichten. Het gebied is voor vogelliefhebbers bijzonder aantrekkelijk, zeker tijdens de vogeltrek. Naast de vele mogelijkheden om te fietsen en te wandelen, kun je hier ook gaan wadlopen. Een unieke kennismaking met de weidse omgeving van dit prachtige stukje werelderfgoed. De Marnewaard is van de mooiste natuurgebieden van Nederland. 
Activiteiten
Deze omgeving is zeer geschikt voor verschillende watersporten. Zeilen, kanoën, surfen en zelfs kitesurfen behoort tot de mogelijkheden in dit schitterende gebied. Ontdek de zeldzame duisternis in het Dark Sky Park en ervaar wat je ziet in het echte donker. Een aanrader voor een bijzonder dagje uit is een zeehondentocht op de Waddenzee.
Steden en dorpen
Een van de mooiste dorpen van Nederland is hier te bewonderen! Bezoek Winsum en ontdek zelf wat dit dorp allemaal te bieden heeft. Bezoek de stad Groningen met zijn rijke cultuur en historie of Dokkum, de noordelijkste stad van de Friese Elf Steden. Een aanrader is een dagtocht naar de Waddeneilanden Schiermonnikoog, Ameland of een bezoekje aan het Duitse eiland Borkum. 
 
        Rianne
 
        Mathilde
 
        Jisk
- 
                
                Selecteer de door jou gewenste aankomst & vertrekdata in de kalender, voer het aantal personen in en je ziet direct de totaalprijs én de omgerekende prijs per persoon. 
- 
                
                Bij de meeste vakantieadressen is het mogelijk om een optie te plaatsen. - Een optie plaats je wanneer je bijna zeker weet dat je gaat boeken, maar nog even met de rest van de groep wilt overleggen. Het vakantieadres wordt dan tijdelijk voor jou geblokkeerd. - Om ervoor te zorgen dat er niet teveel vakantieadressen tijdelijk worden geblokkeerd, kun je maximaal 3 opties tegelijk hebben lopen. - Wil je een kijkafspraak inplannen? Plaats dan eerst een optie op de voorkeursperiode. - Een optie is kosteloos & vrijblijvend, en veelal 3 tot 5 dagen mogelijk. Binnen deze termijn laat je de verhuurder weten of je de optie wenst om te zetten in een boeking. - Opties zijn pas definitief nadat deze door de verhuurder zijn bevestigd. 
- 
                
                
 Ja, dat kan in de meeste gevallen. Je dient eerst een optie te plaatsen op de periode die je eventueel wilt boeken. Bij de opmerkingen geef je aan dat je een kijkafspraak wilt inplannen. De verhuurder neemt vervolgens contact met je op om een kijkafspraak in te plannen. Heb je nog geen definitieve datum? Ook dan is het nodig om een optie te plaatsen, waarbij je bij de opmerkingen vermeldt dat je nog geen definitieve datum hebt. Let op: het inplannen van een kijkafspraak vraagt om afstemming met de verhuurder en is daarom niet op de dag zelf (vandaag) mogelijk.360° tour
- 
                
                Kies een aankomst & vertrek en vul het boekingsformulier in. De verhuurder zal vervolgens contact met je opnemen om de boeking verder af te handelen. Wanneer de verhuurder de boeking heeft goedgekeurd, ontvang je automatisch een e-mail. 
- 
                
                Ja, het stellen van een vraag kan eenvoudig door het invullen van het optieformulier. De vraag plaats je vervolgens bij 'Uw gegevens' > 'Persoonlijk bericht voor de verhuurder'. De verhuurder zal de vraag zo spoedig mogelijk beantwoorden. 
- 
                
                Ja, dat is mogelijk. Vul hiervoor het optieformulier in en stel je vragen alvast in het 'opmerkingen' veld. Dit kun je eenvoudig ingeven bij 'Uw gegevens' > 'Persoonlijk bericht voor de verhuurder'. De verhuurder kan aan de hand daarvan direct telefonisch contact met je opnemen! 
- 
                
                Op onze websites worden vanuit privacy overwegingen geen adresgegevens van vakantieadressen getoond. Op de kaart bij 'Locatie vakantieadres & overzicht Groepsactiviteiten' vind je een nauwkeurige weergave van de locatie van het vakantieadres. Na je boeking ontvang je de adresgegevens van de verhuurder. 
- 
                
                Nadat de verhuurder je boeking heeft goedgekeurd, ontvang je van de verhuurder een boekingsbevestiging inclusief betalingstermijnen. Je betaalt dus rechtstreeks aan de verhuurder. De verhuurder is vrij om zijn eigen betalingstermijnen te hanteren. Veelvoorkomend is een aanbetaling van ca. 50% binnen 2 weken na boeken en de resterende 50% uiterlijk 6 weken voor aankomst. 
- 
                
                Nee, het is niet mogelijk om kosteloos te annuleren. Met het plaatsen van een boeking ontstaat er een betaalverplichting wanneer je boeking door de verhuurder is geaccepteerd. Iedere verhuurder is vrij om zijn eigen annuleringsbeleid te bepalen. De verhuurder zal je hiervan op de hoogte stellen bij het versturen van de boekingsbevestiging. Veelvoorkomend in onze sector zijn de volgende annuleringstermijnen en bijbehorende percentages. - Bij een annulering meer dan 12 maanden voor aankomst, 10% van het totaalbedrag.
- Bij een annulering binnen 6 tot 12 maanden voor aankomst, 30% van het totaalbedrag.
- Bij een annulering binnen 4 tot 6 maanden voor aankomst, 70% van het totaalbedrag.
- Bij een annulering binnen 2 tot 4 maanden voor aankomst, 80% van het totaalbedrag.
- Bij een annulering binnen 2 maanden voor aankomst, 95% van het totaalbedrag.
- Bij een annulering op of na de dag van aankomst, 100% van het totaalbedrag.
 Desgewenst kun je ervoor kiezen om een (groeps)annuleringsverzekering af te sluiten. Voer eerst de gewenste datum én het aantal personen in. Vervolgens wordt in het optie- of boekingsformulier de premie(kosten) getoond, waarna je de groepsannuleringsverzekering desgewenst kunt toevoegen. 
- 
                
                Ja, het is mogelijk om via Vakantieadressen.nl een groepsannuleringsverzekering bij te boeken. Voer eerst de gewenste datum én het aantal personen in. Vervolgens wordt in het optie- of boekingsformulier de premie(kosten) getoond, waarna je de groepsannuleringsverzekering desgewenst kunt toevoegen. Belangrijk: een eigen (doorlopende) annuleringsverzekering dekt doorgaans alleen de annuleringskosten voor de personen die vermeld staan op de polis, en dus niet de hele groep. Daarom raden wij een groepsannuleringsverzekering aan. Alle personen die meegaan, vallen dan onder de dekking. 
- 
                
                    Bekijk hier alle veelgestelde vragen
                
                
 
 
 
 
 
 
 
 
 
 
 
 
 
 
 
 
 
 
 
 
 
 
 
 
 
 
 
 
 
 
 
 
 
 
 
 
 
 
 
 
 
 
 
 
 
 
 
 
 
